Großzügiges, familienfreundliches Einfamilienhaus -
mit viel Potenzial und Raum für Ideen
Häuser zum Kauf86923 Finning
Großzügiges, familienfreundliches Einfamilienhaus - mit viel Potenzial und Raum für Ideen
Objekt-ID: XVPCYNPP / Anbieter-Objekt-ID: FU425
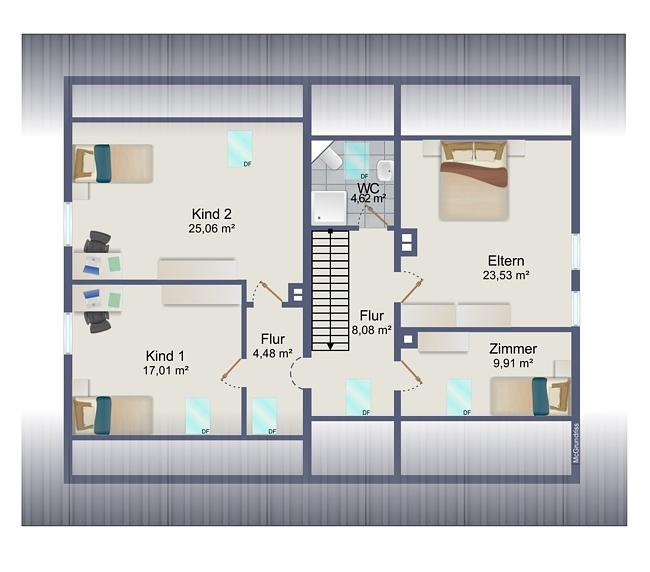
Flächen & Zimmer
- Wohnfläche
- 290 m²
- Zimmer
- 7
- Einliegerwohnung
- ja
- Badezimmer
- 3
- Stellplätze
- 2
- Grundstücksfläche
- 636 m²
Preise & Kosten
- Kaufpreis
- 990.000 €
- Aussen-Courtage
- 2,618 % inkl. 19% MwSt.
Zustand
- Baujahr
- 1983
- Zustand
- teil- / vollsaniert
Ausstattung
- Abstellraum
- ja
- Heizungsart
- Zentralheizung
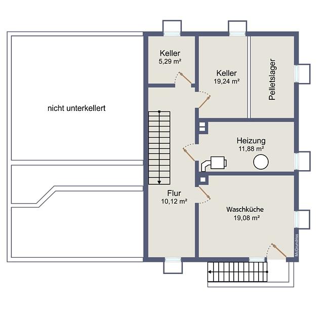
- unterkellert
- TEIL
Energieausweis
- Art
- VERBRAUCH
- gültig bis
- 2035-11-11
- Endenergiebedarf
- 75.90
Objekt-Titel
Lage-Beschreibung
Finning liegt im Voralpengebiet im Landkreis Landsberg am Lech inmitten einer abwechslungsreichen und interessanten Moränenlandschaft und gehört zur Region "Fünfseengebiet". Der Ammersee mit seinem vielfältigen Freizeitangebot ist nur ca. 4 km entfernt. Als eigene örtliche Naherholungseinrichtung mit Zeltplatz , Badesee und Gastronomie ist der Windachspeicher zu erwähnen. Finning verfügt über die wichtigsten Einrichtungen der Grundversorgung wie Kindergarten, Grund- und Teilhauptschule, Arzt, Banken, Sport- und Gemeindezentren sowie verschiedene Einkaufsmöglichkeiten.
Die A96 Lindau-München liegt ca. 4,5 km nördlich, der nächstliegende Bahnhof befindet sich ca. 6 km entfernt in Utting am Ammersee.
Die A96 Lindau-München liegt ca. 4,5 km nördlich, der nächstliegende Bahnhof befindet sich ca. 6 km entfernt in Utting am Ammersee.
sonstige Angaben
Es liegt ein Energieverbrauchsausweis vor.
Dieser ist gültig bis 11.11.2035.
Endenergieverbrauch beträgt 75.90 kwh/(m²*a).
Wesentlicher Energieträger der Heizung ist Pellet.
Das Baujahr des Objekts lt. Energieausweis ist 1983.
Die Energieeffizienzklasse ist C.
Dieser ist gültig bis 11.11.2035.
Endenergieverbrauch beträgt 75.90 kwh/(m²*a).
Wesentlicher Energieträger der Heizung ist Pellet.
Das Baujahr des Objekts lt. Energieausweis ist 1983.
Die Energieeffizienzklasse ist C.
Objektbeschreibung
Dieses beeindruckende Einfamilienhaus bietet außergewöhnlich viel Platz und vielfältige Nutzungsmöglichkeiten.
Das ursprüngliche Gebäude aus dem Jahr 1983 wurde 2006 größtenteils renoviert und im Jahr 2011 durch einen Anbau erweitert, wodurch zusätzliche Wohn- und Nutzflächen entstanden sind.
Aktuell wird das Bestandsgebäude im Erdgeschoss als Einliegerwohnung genutzt.
Die großzügige Familienwohnung erstreckt sich über das gesamte Ober- und Dachgeschoss und überzeugt mit zahlreichen hellen Räumen sowie viel Platz für individuelles Wohnen und Gestalten. Es gibt eine Doppelgarage, eine kleine Werkstatt und viele weitere Highlights – überzeugen Sie sich gerne vor Ort!
Die Immobile eignet sich ideal für Familien mit großem Platzbedarf, Mehrgenerationenwohnen oder Wohnen und Arbeiten unter einem Dach.
Die Immobilie wird komplett unbewohnt übergeben.
Für das Grundstück gibt eine Erweiterungsoption um ca. 312 m². Nähere Informationen finden Sie in unserem ausführlichen Exposé.
Bei dem genannten Preis handelt es sich um einen Angebotspreis,
der in Abstimmung mit dem Verkäufer gegebenenfalls verhandelbar ist.
Kommen Sie gern auf uns zu!
Das ursprüngliche Gebäude aus dem Jahr 1983 wurde 2006 größtenteils renoviert und im Jahr 2011 durch einen Anbau erweitert, wodurch zusätzliche Wohn- und Nutzflächen entstanden sind.
Aktuell wird das Bestandsgebäude im Erdgeschoss als Einliegerwohnung genutzt.
Die großzügige Familienwohnung erstreckt sich über das gesamte Ober- und Dachgeschoss und überzeugt mit zahlreichen hellen Räumen sowie viel Platz für individuelles Wohnen und Gestalten. Es gibt eine Doppelgarage, eine kleine Werkstatt und viele weitere Highlights – überzeugen Sie sich gerne vor Ort!
Die Immobile eignet sich ideal für Familien mit großem Platzbedarf, Mehrgenerationenwohnen oder Wohnen und Arbeiten unter einem Dach.
Die Immobilie wird komplett unbewohnt übergeben.
Für das Grundstück gibt eine Erweiterungsoption um ca. 312 m². Nähere Informationen finden Sie in unserem ausführlichen Exposé.
Bei dem genannten Preis handelt es sich um einen Angebotspreis,
der in Abstimmung mit dem Verkäufer gegebenenfalls verhandelbar ist.
Kommen Sie gern auf uns zu!
