Grundstücke zum Kauf86947 Weil
außergewöhnliches Grundstück mit Altbestand
Objekt-ID: NNCFHUXR / Anbieter-Objekt-ID: WO555
Flächen
- Gesamtfläche
- 7.148 m²
- Grundstücksfläche
- 7.148 m²
Preise & Kosten
- Kaufpreis
- 450.000 €
- Aussen-Courtage
- 3,57 % inkl. MwSt
Zustand
- Erschliessung
- voll erschlossen
Objekt-Titel
außergewöhnliches Grundstück mit Altbestand
Lage-Beschreibung
Die idyllisch gelegene Gemeinde Weil befindet sich ca. 10 Autominuten nordöstlich der Kreisstadt Landsberg am Lech. Zur A 96, Anschlussstelle Penzing, sind es nur ca. 7 km. Mit insgesamt 5 Ortsteilen (Beuerbach Pestenacker Petzenhausen Geretshausen Schwabhausen) zählt der Ort ca. 1.400 Einwohner. Ein kleiner Lebensmittelladen für den Grundbedarf ist vorhanden, ebenso eine Post, die Bücherei, Allgemeinarzt, Zahnarzt, Apotheke, Gaststätten, Bäcker, Metzger und Banken. Eine Busverbindung nach Landsberg, Geltendorf (S-Bahnanschluss) und nach Mering ist ebenfalls vorhanden. Mehrere Vereine mit einem regen Vereinsleben bieten unterschiedliche Freizeitaktivitäten an.
Objektbeschreibung
Zum Verkauf steht ein regelrechtes „Dornröschen“ - Objekt. Wie im Märchen befindet sich die Mühle, das Wohnhaus und die Nebengebäude seit vielen Jahren im „Dornröschen-Schlaf“. Die Mühle wurde ca. im Jahr 1910 neu aufgebaut und ist seit kurzem in die Denkmalliste eingetragen. Das Wohnhaus wurde ca. 1955 erbaut - steht jedoch nicht unter Denkmalschutz.
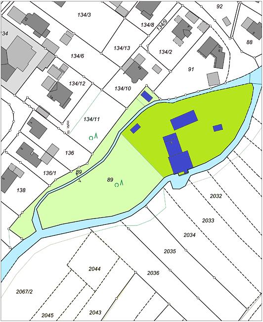
Das sehr große Grundstück im Süden der Gemeinde Weil unterteilt sich grob in einen bebaubaren Bereich mit Zufahrt und in einen Außenbereich mit Bäumen und sehr viel Buschwerk. Ein schöner Bach umschließt das Grundstück komplett und wurde viele Jahre für die Nutzung der Mühle verwendet. Die vorhandenen Turbinen wurden auch zur eigenen Stromversorgung genutzt.
Der Wohntrakt war bis vor ca. 6 Jahren bewohnt, ist jedoch seit langem nicht mehr gepflegt worden. Daher ist ein sehr großer Renovierungsstau vorhanden, der Stadl ist baufällig und einsturzgefährdet.
Mit Liebe, Geduld und Investitionen kann diese Immobilie sicher wieder wunderschön instandgesetzt und/oder in einen einmaligen Wohntraum verwandelt werden. Einige benachbarte Wiesen stehen ebenfalls zum Kauf und können zusätzlich erworben werden.
Gerne erhalten Sie auf Nachfrage detaillierte Informationen zum Grundstück.
Bei dem genannten Preis handelt es sich um einen Angebotspreis,
der in Abstimmung mit dem Verkäufer gegebenenfalls verhandelbar ist.
Kommen Sie gern auf uns zu!
Das sehr große Grundstück im Süden der Gemeinde Weil unterteilt sich grob in einen bebaubaren Bereich mit Zufahrt und in einen Außenbereich mit Bäumen und sehr viel Buschwerk. Ein schöner Bach umschließt das Grundstück komplett und wurde viele Jahre für die Nutzung der Mühle verwendet. Die vorhandenen Turbinen wurden auch zur eigenen Stromversorgung genutzt.
Der Wohntrakt war bis vor ca. 6 Jahren bewohnt, ist jedoch seit langem nicht mehr gepflegt worden. Daher ist ein sehr großer Renovierungsstau vorhanden, der Stadl ist baufällig und einsturzgefährdet.
Mit Liebe, Geduld und Investitionen kann diese Immobilie sicher wieder wunderschön instandgesetzt und/oder in einen einmaligen Wohntraum verwandelt werden. Einige benachbarte Wiesen stehen ebenfalls zum Kauf und können zusätzlich erworben werden.
Gerne erhalten Sie auf Nachfrage detaillierte Informationen zum Grundstück.
Bei dem genannten Preis handelt es sich um einen Angebotspreis,
der in Abstimmung mit dem Verkäufer gegebenenfalls verhandelbar ist.
Kommen Sie gern auf uns zu!
