Ausstattung
      
    
    | Ausstattungskategorie | Standard | 
| Bauweise | Massiv | 
| Dachform | Satteldach | 
| Unterkellert | nein | 
    
      Adresse
    
  
  
  | Postleitzahl | 26831 | 
| Ort | Bunde | 
| Land | Deutschland | 
      
        Energiepass
      
    
    
          | Art | Bedarf | 
| Gültig bis | 2035-07-17 | 
| Primärenergieträger | OEL | 
| Stromwert | 11.50 | 
| Wärmewert | 70.50 | 
| Wertklasse | C | 
| Gebäudeart | |
| Endenergiebedarf | 98.30 kWh/ (m²a) | 
      
        Preise
      
    
    | Kaufpreis | 390.000,00 € | 
| Käuferprovision | 3,0% - inkl. 19% Umsatzsteuer | 
      
        Flächen
      
    
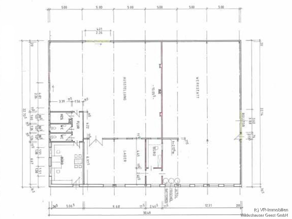
    | Bürofläche ca. | 90,00 m² | 
| Gesamtfläche ca. | 940,00 m² | 
| Grundstücksfläche ca. | 8.233,00 m² | 
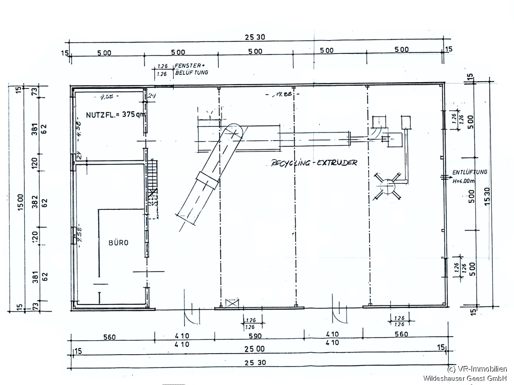
| Lagerfläche ca. | 350,00 m² | 
      
        Zustand
      
    
    | Baujahr | 1980 | 
| Verkaufstatus | Offen | 
      Willkommen in dieser vielseitigen Gewerbeimmobilie, die sich ideal für Unternehmen eignet, die sowohl Büro- als auch Lagerflächen benötigen. Die großzügige Gewerbehalle bietet Ihnen eine moderne und funktionale Arbeitsumgebung, die auf die Bedürfnisse Ihres Unternehmens zugeschnitten ist.
Halle und Büroräume:
Die Hauptgewerbehalle besticht durch ihre großzügige Fläche, die Ihnen ausreichend Platz für Ihre betrieblichen Abläufe bietet. Angrenzend befinden sich gut ausgestattete Büroräume, die eine angenehme Arbeitsatmosphäre schaffen. Diese sind mit großen Fenstern ausgestattet, die für viel Tageslicht sorgen und eine produktive Umgebung fördern.
Sanitäreinrichtungen:
Die Immobilie verfügt über separate Toilettenanlagen, die sowohl für Mitarbeiter als auch für Besucher leicht zugänglich sind. Dies sorgt für zusätzlichen Komfort und Hygiene in Ihrem Arbeitsumfeld.
Zweite Lagerhalle:
Zusätzlich zur Hauptgewerbehalle steht Ihnen eine zweite Lagerhalle zur Verfügung. Diese bietet Ihnen noch mehr Stauraum und Flexibilität für Ihre Lagerbedürfnisse, sei es für Waren, Materialien oder Ausstattungen.
Außenanlagen und Parkflächen:
Das große Grundstück ist optimal gestaltet und bietet großzügige Außenanlagen. Die gepflasterten Park- und Lagerflächen ermöglichen eine einfache Anfahrt und einen reibungslosen Ablauf beim Be- und Entladen von Waren. Hier finden sowohl Mitarbeiter als auch Kunden ausreichend Parkmöglichkeiten.
Nutzen Sie die Gelegenheit, diese vielseitige Gewerbehalle zu besichtigen und entdecken Sie das Potenzial, das sie für Ihr Unternehmen bietet!
    
      - Eingezäuntes Gelände mit Stahlschiebetor
- Großes Außengelände mit gepflasterten Parkplatzflächen
- Hallentor im vorderen Giebel mit Schaufenster
- hohes Hallentor im hinteren Giebel
- Ölheizung für die vordere Halle
Hinweis: Die PV-Anlage auf dem Dach ist nicht Bestandteil des Angebotes.
    
        Die Gewerbeimmobilie befindet sich in Bunde, einer strategisch günstigen Lage, die eine hervorragende Anbindung an die umliegenden Verkehrswege bietet. Dies macht sie zu einem idealen Standort für Ihr Unternehmen.
Bunde liegt im Landkreis Leer in Niedersachsen und ist strategisch günstig in der Nähe der niederländischen Grenze. Dies kann für Unternehmen, die grenzüberschreitenden Handel betreiben, von Vorteil sein.
Infrastruktur: Die Stadt verfügt über eine gut ausgebaute Infrastruktur mit verschiedenen Versorgungsunternehmen, die für Gewerbebetriebe wichtig sind. Dazu gehören Strom, Wasser, Abwasser und Internetanbindungen.
Es gibt auch lokale Dienstleister und Handwerksbetriebe, die für die Unterstützung von Unternehmen zur Verfügung stehen.
Verkehrsanbindung: Bunde ist gut an das Straßennetz angebunden, was den Transport von Waren erleichtert. Die Nähe zu größeren Städten wie Leer und Emden bietet zusätzliche Vorteile.
Die Anbindung an die Autobahn A31 ermöglicht eine schnelle Erreichbarkeit von anderen wichtigen Wirtschaftsstandorten in der Region.
Arbeitsmarkt: In der Region gibt es eine Vielzahl von Arbeitskräften, die für verschiedene Branchen zur Verfügung stehen. Die Nähe zu Ausbildungsstätten und Hochschulen kann ebenfalls von Vorteil sein, um qualifizierte Mitarbeiter zu gewinnen.
Die Lebensqualität in der Region kann dazu beitragen, Fachkräfte anzuziehen und zu halten.
Wirtschaftliche Unterstützung: Lokale Wirtschaftsförderungen und Kammern bieten Unterstützung für Existenzgründer und Unternehmen, die sich in der Region ansiedeln möchten. Dies kann in Form von Beratungen, Förderprogrammen oder Netzwerkmöglichkeiten geschehen.
Lebensqualität: Bunde bietet eine hohe Lebensqualität mit einer ruhigen Umgebung, was für Mitarbeiter attraktiv sein kann. Die Stadt hat eine gute Anbindung an Freizeitmöglichkeiten und Natur, was das Leben und Arbeiten dort angenehm macht.
      
          
          
                          26831 Bunde
            
            Deutschland
            
                          
                      
        
       
        Deutschland
Es wird ausdrücklich darauf hingewiesen, dass abhängig vom Alter der Immobilie, der Art des Gebäudes, der Nutzungsart und den bisherigen Instandhaltungs- und/oder Instandsetzungsarbeiten des bisherigen Eigentümers Pflichten zur Sanierung nach dem Gebäudeenergiegesetz (GEG) binnen zwei Jahren ab Eigentumswechsel bestehen können, um die energetischen Voraussetzungen des GEG zu erfüllen. Dazu gehören u. a. die Dämmung der Geschossdecken, § 47 GEG, die Dämmung von Rohren, § 69 GEG, sowie die Modernisierung der Heizungsanlage, §§ 71, 72 GEG.
VR-Immobilien Wildeshauser Geest GmbH Bahnhofstraße 2 27793 Wildeshausen Geschäftsführer Olaf Klawonn Telefon (04431) 8901205 E-Mail: info@vr-immobilien24.de Eingetragen im Handelsregister Oldenburg HRB 141220 Zuständige Aufsichtsbehörde für die Tätigkeit nach § 34 c) GewO: Oldenburgische Industrie- und Handelskammer Moslestraße 6 26122 Oldenburg www.ihk-oldenburg.de USt-IdNr.: DE217973932 Rechtsform: Gesellschaft mit beschränkter Haftung Inhaltlich verantwortlich gem. §55 Abs. 2 RStV: Olaf Klawonn
 
                  
                                       
                  
                                       
                  
                                       
                  
                                       
                  
                                       
                  
                                       
                  
                                       
                  
                                       
                  
                                       
                  
                                       
                  
                                       
                  
                                       
                  
                                      