Lade ...

/ Neubau! Exklusive Eigentumswohnung direkt im Stadtkern von Meschede!
Immobilie-ID: 431232

{{notice.title | translate}}

{{notice.message}}

Außenansicht
Außenansicht
Bild2
Bild2
Bild3
Bild3
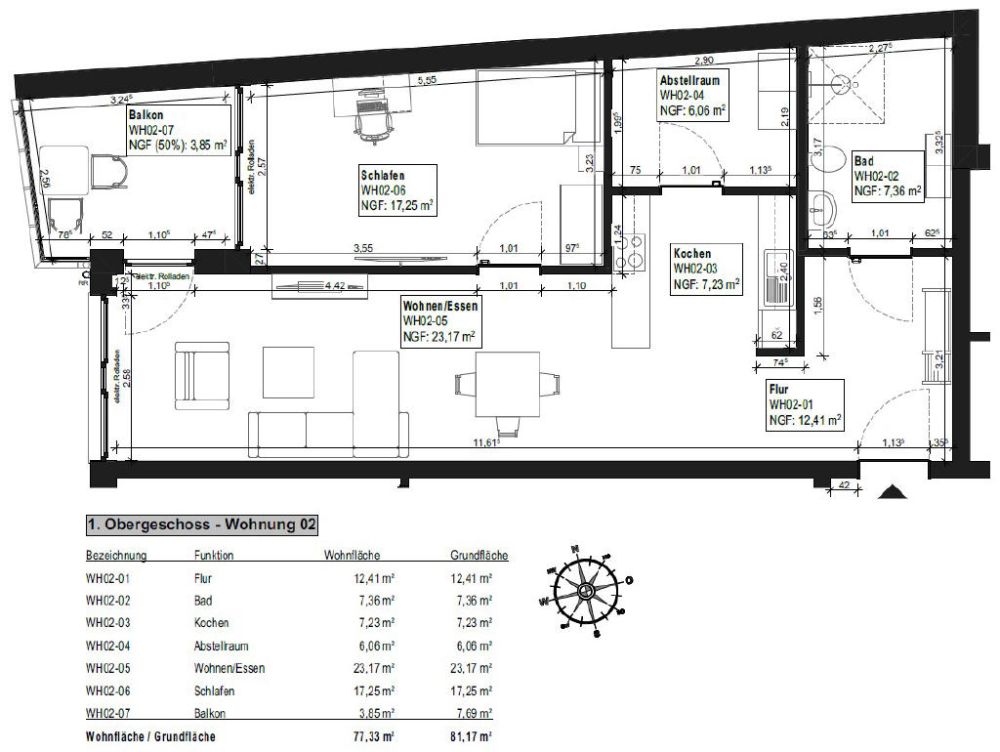
Bemaßter Grundriss Whg. 2
Bemaßter Grundriss Whg. 2
Bild5
Bild5
Stellplätze
Stellplätze
Anbieter kontaktieren
Nein
Neubau
Wohnung
Wohnungsart
Kauf
Vermarktungsart
328.000,00 €
Kaufpreis
78 m²
Wohnfläche ca.
2
Zimmer

Adresse

Postleitzahl 59872
Ort Meschede
Land Deutschland
Die vollständige Adresse erhalten Sie vom Anbieter. Jetzt Kontakt aufnehmen

Energiepass

Preise

Kaufpreis
Kaufpreis 328.000,00 €
pro m² 4.151,90 €

Flächen

Wohnfläche ca. 78,00 m²
Balkone 1
Wohneinheiten 10
Zimmer 2

Zustand

Baujahr 2025
Beschreibung

Sie suchen eine Eigentumswohnung mitten im Zentrum der Stadt Meschede? Dann ist dieses Neubauprojekt genau richtig für Sie!
Es erwartet Sie eine topmoderne Wohnung, in einem toll durchdachten, energetisch optimierten Gebäude mit Personenaufzug und Garagenstellplatz. 
Der ortsnahe, erfahrene Bauträger mit vielen Referenzobjekten in der näheren Umgebung, zaubert Ihnen diese Wohnung bezugsfertig zum vereinbarten Zeitpunkt.
Ein Energiebedarfsausweis wird ausgestellt. Das Gebäude wird gem. dem technischen
Standard der zum Zeitpunkt der Bauantragstellung gültigen Energieeinsparverordnung erstellt.
Gern stellen wir Ihnen diese Offerte persönlich vor oder treffen uns mit Ihnen am Standort für weitere Informationen. Greifen Sie zu, bevor es andere tun!

Lage

Dieses Wohn- und Geschäftshaus wird im Zentrum von Meschede gebaut. In unmittelbarer Nähe befinden sich zahlreiche Einkaufsmöglichkeiten, Restaurants und Cafés. Auch Schulen, Kindergärten und Ärzte sind gut zu erreichen. Der Bahnhof Meschede ist fußläufig erreichbar, und die Anbindung an den öffentlichen Nahverkehr ist ausgezeichnet.

Meschede bietet zudem eine hohe Lebensqualität mit vielfältigen Freizeit- und Erholungsmöglichkeiten. Die umliegenden Wälder und Seen laden zu ausgedehnten Spaziergängen und sportlichen Aktivitäten ein. Der Hennesee, ein beliebtes Ausflugsziel, ist nur wenige Autominuten entfernt.

Lade Kartenansicht
Impressum des Anbieters
Firmenname Volksbank Sauerland Immobilien GmbH
Anschrift Drostenfeld 2-8, 59759 Arnsberg
Telefon 02932 9511230
Vertretungsberechtigter Peter Baum, Lars Glindmeyer, Bernd Griese
Berufsaufsichtsbehoerde Landrat des Hochsauerlandkreises - Fachdienst 31 - Ordnung - Steinstraße 27, 59872 Meschede
Handelsregister Handelsregister Arnsberg
Ust.-Id DE123880986
Weiteres Information zur EU-weiten Regelung zur Online-Streitbeilegung

Mit der seit 06.01.2016 gültigen EU-Verordnung Nr. 524/2013 wurde eine neue EU-Plattform eingeführt. Diese bietet eine einfache, effiziente, schnelle und kostengünstige außergerichtliche Lösung für Streitigkeiten, die sich aus Online-Rechtsgeschäften zwischen einem Unternehmer und Verbraucher ergeben.

Über diesen Link gelangen Sie zur EU-Schlichtungsstelle: http://ec.europa.eu/consumers/odr/

Volksbank Sauerland
Immobilien GmbH
Drostenfeld 2-8
59759 Arnsberg

Telefon: 02932 9511230
Telefax: 02932 9511246
E-Mail: anfrage@immo-vbs.de

Handelsregister Arnsberg HRB 709
Geschäftsführer: Peter Baum, Lars Glindmeyer, Bernd Griese

Aufsichtsbehörde:
Landrat des Hochsauerlandkreises - Fachdienst 31 - Ordnung - Steinstraße 27, 59872 Meschede



USt.-IdNr.: DE123880986

Information zur EU-weiten Regelung zur Online-Streitbeilegung

Mit der seit 06.01.2016 gültigen EU-Verordnung Nr. 524/2013 wurde eine neue EU-Plattform eingeführt. Diese bietet eine einfache, effiziente, schnelle und kostengünstige außergerichtliche Lösung für Streitigkeiten, die sich aus Online-Rechtsgeschäften zwischen einem Unternehmer und Verbraucher ergeben.

Über diesen Link gelangen Sie zur EU-Schlichtungsstelle: http://ec.europa.eu/consumers/odr/

Zurück
Weitere Informationen
Technisch notwendige Cookies
sid und sid_key

Gültigkeit: bis zum Ende der Session, wenn der Browser geschlossen wird

Beschreibung: Diese Cookies identifizieren Sie gegenüber dem Shop mit einer eindeutigen Kennung, z.B. um den Warenkorb zu speichern.

language

Laufzeit: bis zum Ende der Session, wenn der Browser geschlossen wird

Beschreibung: Speichert die aktuell verwendete Sprache.

displayedCookiesNotification

Laufzeit: 1 Jahr

Beschreibung: Speichert die Entscheidung über die Cookie-Einwilligung des Besuchers der Website.

allowTracking

Laufzeit: 1 Jahr

Beschreibung: Speichert die Entscheidung über die Benutzung von Tracking-Cookies.

aHistoryArticles

Gültigkeit: bis zum Ende der Session, wenn der Browser geschlossen wird

Beschreibung: Speichert eine Liste der zuletzt angesehenen Artikel.

Tracking Cookies
_fbp

Gültigkeit: 3 Monate

Beschreibung: Wird von Facebook genutzt, um eine Reihe von Werbeprodukten anzuzeigen, zum Beispiel Echtzeitgebote dritter Werbetreibender.

_ga

Gültigkeit: 2 Jahre

Beschreibung: Registriert eine eindeutige ID, die verwendet wird, um statistische Daten dazu, wie der Besucher die Website nutzt, zu generieren.

_gid

Gültigkeit: 1 Tag

Beschreibung: Registriert eine eindeutige ID, die verwendet wird, um statistische Daten dazu, wie der Besucher die Website nutzt, zu generieren.

Einstellungen
Akzeptieren
Cookie-Hinweis

Cookies und ähnliche Technologien werden auf vr-wohnen.de verwendet, um unsere Inhalte und Angebote für Sie stetig zu verbessern. Durch Klicken auf OK oder durch Anklicken von Inhalten auf unseren Websites stimmen Sie der Verwendung dieser Cookies und ähnlicher Technologien zu. Ihre Daten werden ausschließlich verschlüsselt übertragen.

Technisch notwendige Cookies
Tracking Cookies

Einstellungen verwalten Alle akzeptieren