Lade ...

Großzügige Gewerbefläche mit vielen Möglichkeiten direkt am Marktplatz zu vermieten!
Immobilie-ID: 431968

{{notice.title | translate}}

{{notice.message}}

Großzügige Gewerbefläche mit vielen Möglichkeiten
direkt am Marktplatz  zu vermieten!
Großzügige Gewerbefläche mit vielen Möglichkeiten
direkt am Marktplatz  zu vermieten! (2)
Großzügige Gewerbefläche mit vielen Möglichkeiten
direkt am Marktplatz  zu vermieten! (3)
Großzügige Gewerbefläche mit vielen Möglichkeiten
direkt am Marktplatz  zu vermieten! (4)
Großzügige Gewerbefläche mit vielen Möglichkeiten
direkt am Marktplatz  zu vermieten! (5)
Großzügige Gewerbefläche mit vielen Möglichkeiten
direkt am Marktplatz  zu vermieten! (6)
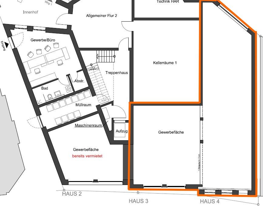
Gewerbefläche EG
Gewerbefläche EG
Anbieter kontaktieren
Nein
Neubau
Bürofläche
Büroart
Miete
Vermarktungsart
1.645,00 €
Kaltmiete

Ausstattung

Befeuerung / Energieträger
Gas
Erdwärme
Heizungsart
Fußboden
Unterkellert nein

Adresse

Postleitzahl 48431
Ort Rheine
Land Deutschland
Etage EG
Die vollständige Adresse erhalten Sie vom Anbieter. Jetzt Kontakt aufnehmen

Energiepass

Art Bedarf
Gültig bis 2032-05-23
Primärenergieträger GAS
Wertklasse A+
Gebäudeart
Endenergiebedarf 26.10 kWh/ (m²a)

Preise

Betriebskosten
Netto 330,00 €
Kaltmiete 1.645,00 €
Kaution
Kaution 3.290,00 €
Freitext 3,29 €
MwSt. Mehrwertsteuer
Satz 19,00 %
Nebenkosten
Nebenkosten 330,00 €
Nettokaltmiete 1.645,00 €
Summe Miete
Netto 1.645,00 €

Flächen

Bürofläche ca. 141,00 m²
Gesamtfläche ca. 141,00 m²
Nutzfläche ca. 141,00 m²
Vermietbare Fläche ca. 141,00 m²

Zustand

Baujahr 2021
Verkaufstatus Offen

Verwaltung

Gewerbliche Nutzung
Verfügbar ab ab sofort!
Beschreibung

Zentraler geht´s nicht! - Büro/Praxis oder Einzelhandel im Herzen von Rheine!

Am modernisierten Marktplatz von Rheine steht dieser hochwertige Neubau mit insgesamt 13 Wohn- und 3 Gewerbeeinheiten. Die direkte Lage zum Stadtzentrum bietet viele Möglichkeiten für die zukünftige Nutzung.

Exklusiv dürfen wir Ihnen diese ca.141 m² große Gewerbefläche im Erdgeschoss, direkt im Sichtbereich vom Marktplatz, anbieten. Die Fläche wird in einem veredelten Rohbau übergeben, sodass Sie Ihre eigenen Ideen und Wünsche in die Realität umsetzen können.
...
Weitere Informationen zu dieser Immobilie erhalten Sie über das Kopieren der nachfolgenden Adresse unserer Webseite: www.volksbank-immobilien.info/immobilienangebote/?sort=rank&cid=20691

Ausstattung

- Sole-Wasser Wärmepumpe (Erdwärme) kombiniert mit Spitzenlast Brennwertkessel (Erdgas)

- veredelter Rohbau:
-> glatte Oberfläche an den Wänden
-> Heizung
-> Sanitär
-> Unterverteilung Strom & Medien

1.645,00€ netto zzgl. 312,55€ gesetzl. MwSt. (19%)
zzgl. Nebenkostenvorauszahlung
(Strom rechnet der Mieter direkt mit einem Versorger seiner Wahl ab)

Lage

Büro/Praxis oder Einzelhandel in der Nähe des Marktplatzes von Rheine-Innenstadt, links der Ems

Auf dem attraktiven Marktplatz und in der belebten Innenstadt können Sie nicht nur wunderbar shoppen, wie z.B. im Ems Forum oder in der neuen Ems Galerie, sondern auch in einem der zahlreichen Cafés und Restaurants das Leben genießen. Einkaufsmöglichkeiten des täglichen Bedarfs, Ärzte und gute Verkehrsanbindungen sind hier selbstverständlich!

Das Mittelzentrum Rheine ist mit rund 85.000 Einwohnern die zweitgrößte Stadt im Münsterland. Direkt an der Ems gelegen, dehnt sie sich über eine Fläche von 145 km² aus. In der ansonsten nur durch kleinere Zentren geprägten ländlichen Region ist Rheine die funktional bedeutendste Stadt im Städtedreieck Münster, Osnabrück und Enschede, die rund 40 km entfernt liegen.

Lade Kartenansicht
Sonstige Angaben

Hat dieses Angebot Ihr Interesse geweckt?
Gerne schicken wir Ihnen weitere Unterlagen und vereinbaren anschließend einen Besichtigungstermin mit Ihnen. Detaillierte Auskunft geben wir Ihnen auch in einem persönlichen oder telefonischen Gespräch.
Rufen Sie uns einfach unter der Telefonnummer: 0251 5005 5911 an oder senden Sie uns eine Kontaktanfrage mit Ihren vollständigen Kontaktdaten.

Impressum des Anbieters

Volksbank Immobilien Münsterland GmbH
Neubrückenstr. 66
48143 Münster

Handelsregister: HR B 19070
Registergericht: Amtsgericht Münster

Vertreten durch:
Dr. Oliver Altenhövel
Andreas Howe

Kontakt
Telefon: 0251 5005 580
Telefax: 0251 5005 5899
E-Mail: info@volksbank-immobilien.info

Umsatzsteuer-ID
Umsatzsteuer-Identifikationsnummer gemäß § 27 a Umsatzsteuergesetz:
DE 124 376 203

Gewerbeerlaubnis
Erlaubnis gemäß §34c Gewerbeordnung

Aufsichtsbehörde
Stadt Münster – Ordnungsamt -
Klemensstraße 10 (Stadthaus 1)
48143 Münster
http://www.stadt-muenster.de

Redaktionell verantwortlich
Volksbank Immobilien Münsterland GmbH
Dr. Oliver Altenhövel
Neubrückenstr. 66
48143 Münster

Verbraucherinformationen:
Information nach § 36 VSBG (Ombudsmann Immobilien IVD/VPB):
Der Immobilienverband Deutschland IVD e.V. hat mit Beteiligung des Verbraucherverbandes Verband Privater Bauherren e.V. (VPB) eine Schlichtungsstelle nach Maßgabe des Verbraucherstreitbeilegungsgesetzes (VSBG) eingerichtet. Vor der Schlichtungsstelle können u. a. Streitigkeiten zwischen Verbrauchern und Mitgliedern des IVD in einem außergerichtlichen Schlichtungsverfahren beigelegt werden. Die Volksbank Immobilien Münsterland GmbH ist Mitglied im IVD und nimmt an einem Schlichtungsverfahren beim Ombudsmann Immobilien IVD/VPB – Grunderwerb und -verwaltung teil. Die Anschrift der Schlichtungsstelle lautet: Ombudsmann Immobilien IVD/VPB – Grunderwerb und -verwaltung, Littenstraße 10, 10179 Berlin. Weitere Informationen zur Schlichtungsstelle (z.B. weitere Kommunikationsdaten, Verfahrensordnung) erhalten Sie unter http://www.ombudsmann-immobilien.net.

An Schlichtungsverfahren bei anderen Schlichtungsstellen nimmt die Volksbank Immobilien Münsterland GmbH grundsätzlich nicht teil.

Zurück
Weitere Informationen
Technisch notwendige Cookies
sid und sid_key

Gültigkeit: bis zum Ende der Session, wenn der Browser geschlossen wird

Beschreibung: Diese Cookies identifizieren Sie gegenüber dem Shop mit einer eindeutigen Kennung, z.B. um den Warenkorb zu speichern.

language

Laufzeit: bis zum Ende der Session, wenn der Browser geschlossen wird

Beschreibung: Speichert die aktuell verwendete Sprache.

displayedCookiesNotification

Laufzeit: 1 Jahr

Beschreibung: Speichert die Entscheidung über die Cookie-Einwilligung des Besuchers der Website.

allowTracking

Laufzeit: 1 Jahr

Beschreibung: Speichert die Entscheidung über die Benutzung von Tracking-Cookies.

aHistoryArticles

Gültigkeit: bis zum Ende der Session, wenn der Browser geschlossen wird

Beschreibung: Speichert eine Liste der zuletzt angesehenen Artikel.

Tracking Cookies
_fbp

Gültigkeit: 3 Monate

Beschreibung: Wird von Facebook genutzt, um eine Reihe von Werbeprodukten anzuzeigen, zum Beispiel Echtzeitgebote dritter Werbetreibender.

_ga

Gültigkeit: 2 Jahre

Beschreibung: Registriert eine eindeutige ID, die verwendet wird, um statistische Daten dazu, wie der Besucher die Website nutzt, zu generieren.

_gid

Gültigkeit: 1 Tag

Beschreibung: Registriert eine eindeutige ID, die verwendet wird, um statistische Daten dazu, wie der Besucher die Website nutzt, zu generieren.

Einstellungen
Akzeptieren
Cookie-Hinweis

Cookies und ähnliche Technologien werden auf vr-wohnen.de verwendet, um unsere Inhalte und Angebote für Sie stetig zu verbessern. Durch Klicken auf OK oder durch Anklicken von Inhalten auf unseren Websites stimmen Sie der Verwendung dieser Cookies und ähnlicher Technologien zu. Ihre Daten werden ausschließlich verschlüsselt übertragen.

Technisch notwendige Cookies
Tracking Cookies

Einstellungen verwalten Alle akzeptieren