Ausstattung
| Befeuerung / Energieträger |
Pellet |
| Heizungsart |
Zentral |
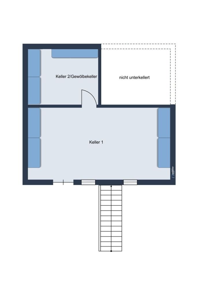
| Unterkellert | teil |
Adresse
| Postleitzahl | 89537 |
| Ort | Giengen an der Brenz |
| Land | Deutschland |
| Anzahl Etagen | 4 |
Energiepass
| Art | Bedarf |
| Gültig bis | 2035-09-22 |
| Primärenergieträger | PELLET |
| Wertklasse | H |
| Gebäudeart | Wohngebäude |
| Endenergiebedarf | 274.80 kWh/ (m²a) |
Preise
| Kaufpreis | 227.000,00 € |
| Käuferprovision | 3,57% inkl. 19,00 % MwSt. |
Flächen
| Wohnfläche ca. | 78,00 m² |
| Grundstücksfläche ca. | 140,00 m² |
| Badezimmer | 1 |
| Schlafzimmer | 2 |
| Garagen/ Stellplätze | 1 |
| Terrassen | 1 |
| Zimmer | 3 |
Zustand
| Baujahr | 1650 |
| Verkaufstatus | Offen |
| Zustand | Teil-Vollsaniert |
Verwaltung
| Verfügbar ab | ab Oktober 2025 |
Mit diesem liebevoll sanierten Wohnhaus können sich Liebhaber ein echtes Schmuckstück erschaffen. Das Baujahr des massiv gebauten 4-geschossigen Wohnhauses ist nicht bekannt, gesichert ist jedoch, dass es nach dem dreißigjährigen Krieg und dem Brand von Giengen wieder neu aufgebaut wurde.
Das Objekt überzeugt mit einer Wohnfläche von rund 107 m², mit insgesamt drei Zimmern, einer Küche und einem Tageslichtbad bietet es ausreichend Platz für individuelle Wohnwünsche. Die kompakte Bauweise, die durchdachte Raumaufteilung und die hellen Räume machen dieses Objekt zu Ihrem idealen Zuhause.
Über den Eingangsbereich mit Diele im Erdgeschoss gelangen Sie in die offen und einladend gestaltete großzügige Wohnküche. Gegenüber befinden sich ein Schlafzimmer und ein Tageslichtbad mit Dusche, Waschbecken und WC. Über eine Holztreppe gelangen Sie in das Obergeschoss wo sich Ihnen der helle und großzügige Wohnbereich eröffnet. Im Dachspitz wurde ein Studio ausgebaut, welches sich vielseitig nutzen lässt, den Wohnkomfort nochmals erhöht und viel Raum für persönliche Gestaltung bietet.
Das Objekt ist teilweise unterkellert und dort befinden sich zwei zusätzliche Räume zur individuellen Nutzung als Keller- oder Abstellräume.
2012 - 2014
Freigrabung der Fundament und anschließende Trockenlegung
Teilweise Abtragung der Außenwände bzw. des Fachwerks und anschließender Neuaufbau
Wegen dem Fachwerk wurde eine baubiologische Innendämmung gewählt
Verstärkung der Dachsparren und anschließende Neueindeckung und Isolierung
Isolierung der Geschossdecken
Neuaufbau bzw. Aufbereitung aller Holz- / Natursteinböden
Erneuerung der Wasser- und Elektroleitungen
Erneuerung und Isolierung des Daches
Austausch der Heizung (Pelletsheizung)
Verlegung eines Steinplattenbodens im UG
Neuanlage der Außenanlagen und des Gartens
Giengen an der Brenz liegt im mittleren Brenztal auf der östlichen Schwäbischen Alb, im Osten Baden-Württembergs an der Grenze zu Bayern, etwa zehn Kilometer südöstlich von Heidenheim an der Brenz und 30 Kilometer nordöstlich von Ulm. Giengen liegt verkehrsgünstig an der Bundesautobahn A7. Die Stadt ist über die Anschlussstelle Giengen/Herbrechtingen zu erreichen. Die B 19 führt über Herbrechtingen nach Heidenheim. Die Stadt liegt an der Bahnlinie Aalen–Heidenheim–Ulm. Der Bahnhof liegt in unmittelbarer Nähe. Im Stadtgebiet versorgen Buslinien den öffentlichen Personennahverkehr. Als Industriestandort bietet Giengen zahlreiche Arbeitsplätze bei hoher Wohnqualität und attraktivem Freizeitangebot in reizvoller Landschaft. Es gibt ein Gymnasium, eine Realschule, eine Werkrealschule, sowie mehrere Grundschulen. Neben den Schulen sind auch Kindergärten und Kitas fußläufig in der Kernstadt verteilt. Einkaufsmöglichkeiten sind über kurze Wege erreichbar.
89537 Giengen an der Brenz
Deutschland
Deutschland
BITTE BEACHTEN SIE:
Wir bitten Sie um Verständnis, dass wir zum Schutz der Eigentümer ausschließlich Anfragen mit vollständigen Angaben in den jeweiligen Immobilienportalen entgegennehmen.
Zudem möchten wir Sie darauf hinweisen, dass dieses Angebot frei bleibend ist. Im Falle mehrerer Kaufzusagen, behalten sich die Eigentümer das Recht vor, direkt zu entscheiden oder eine Entscheidung über Gebote über dem Angebotspreis herbeizuführen.
Haben Sie weitere Fragen zu unserem Angebot ?
Gerne erörtern wir Ihnen weitere Einzelheiten in einem persönlichen Gespräch.
Leider das passende Angebot noch nicht dabei? Auf unserer Homepage finden Sie viele weitere interessante Immobilienangebote. Wir freuen uns über Ihren Besuch unter:
www.brenztal-immobilien.de